ENGLISH

NORYX

ADVANCED ENGINEERING SOLUTIONS

השירותים שלנו

ויזואליזציה

סיור וירטואלי אימרסיבי המעניק חווית נוכחות מלאה בשטח.

קבצי תכנון

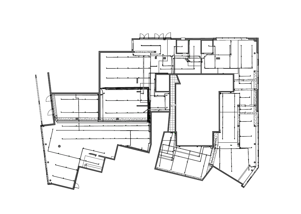
אספקת תוצרי מדידה ותכנון בפורמטים DWG/CQD מדויקים.

קבצי RVT (BIM)

מידול מידע בשיטת BIM לניהול ותכנון חכם של פרויקטים.

מעטפת מדידה ורישום

מיפוי, סקרי קרקע, תכנון ורישום משלב התכנון ועד הביצוע.

התוצרים שלנו

תוצרי תכנון והנדסה (לחצו להגדלה)

תוצר 1 תוצר 2

שאלות ותשובות טכניות

מהי רמת הדיוק של הסריקה והמדידה?

אנו משתמשים בטכנולוגיית LiDAR ופוטוגרמטריה מתקדמת המאפשרת דיוק של עד מילימטרים בודדים, בהתאם לדרישות הפרויקט.

באילו פורמטים מתקבלים התוצרים הסופיים?

אנו מספקים קבצי DWG (AutoCAD), מודלים של Revit (RVT), קבצי IFC לשיתוף מידע ותוכניות PDF לביצוע.

כמה זמן לוקח לייצר מודל BIM מלא?

משך העבודה תלוי במורכבות המבנה, אך לרוב תוצרים ראשוניים מוכנים תוך 3 עד 7 ימי עסקים.

האם ניתן לשלב את הסיור הווירטואלי במערכות ניהול מבנה?

בהחלט. התוצרים שלנו מותאמים להטמעה במערכות GIS ובתוכנות ניהול נכסים מתקדמות.

בואו נדבר טכנולוגיה

054-6745331 | info@noryx.io